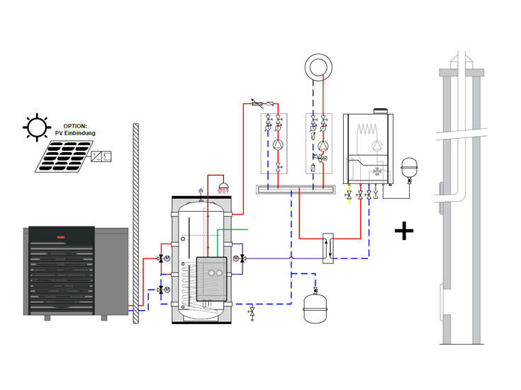
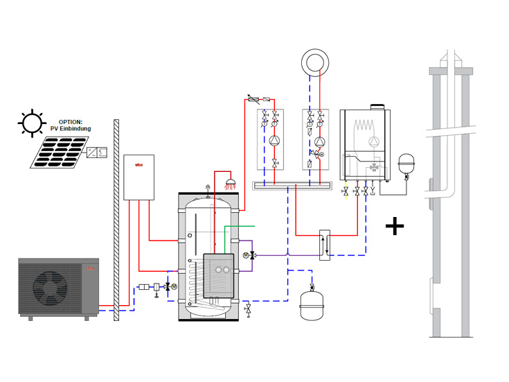
Wärmepumpen-Gas-Hybridlösungen

Wir haben insgesamt fünf perfekt aufeinander abgestimmte Systeme für Sie zusammengestellt.

 
 
 

Kontaktieren Sie uns.

Sie haben Fragen oder Wünsche?
Wir freuen uns über Ihre Kontaktaufnahme.

Oder nutzen Sie unser Kontaktformular. Wir werden uns schnellstmöglich mit Ihnen in Verbindung setzen.